292 ERIEVIEW DRIVE - $494,900.00
Grocery Stores
Schools
Restaurants
Gas Stations
Banks
Parks
Transit
Police
Fire Station
Place of Worship
Please select an amenity above to view a list.

292 ERIEVIEW DRIVE,Kingsville - $494,900 - Directions

| | MLS #: | 25022218 | | Price: | $494,900.00 | | Online: | https://www.win dsorontariolist ings.com/proper ty-28805421 |
|  |
Directions
Property Specs
Price$494,900.00
CityKingsville, ON
Bed / Bath2 / 1 Full
Address292 ERIEVIEW DRIVE
Listing ID25022218
StyleBungalow, Ranch
ConstructionAluminum/Vinyl
FlooringCeramic/Porcelain, Other
ParkingAttached Garage, Garage, Inside Entry
Land Size35 X 101 FT
TypeHouse
StatusFor sale
Extended Features:
Features Front DrivewayOwnership FreeholdCooling Central air conditioningHeating Forced air, FurnaceHeating Fuel Natural gas
Details:
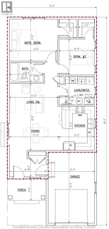
Be the First to Call This Home! This brand-new bungalow is the perfect opportunity to become a homeowner. Thoughtfully designed, it offers 2 spacious bedrooms—each with its own walk-in closet, a bright full bath, and a functional layout that combines comfort and style. The kitchen with eating area flows into the inviting living room, creating the ideal space for both everyday living and entertaining. With a main-floor laundry room and an attached single-car garage for added storage and parking, this home offers everyday convenience. Built with quality craftsmanship and backed by a Tarion New Home Warranty, this home ensures peace of mind while you enjoy the benefits of ownership. Don’t miss your chance to own a brand-new home tailored for easy, comfortable living! (id:4555)
topGallery
Displaying 1 through 3 of 3 of 3 in gallery.
top LISTING OFFICE:
Deerbrook Realty Inc. Brokerage, Robbie Turner